
| Terminology | Reference Symbol | Description |
|---|---|---|
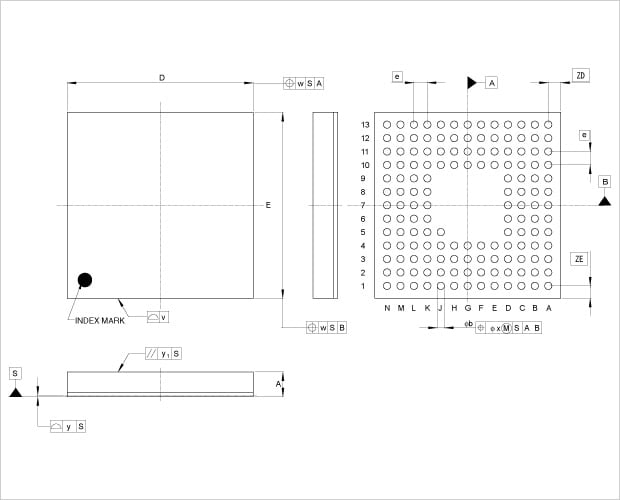
| Nominal dimensions | D x E or D x E | Largest dimension of the package length excluding terminals and width excluding terminals |
| Package length | D or D | Largest dimension of the package length excluding terminals |
| Package width | E or E | Largest dimension of the package width excluding terminals |
| Package center offset | w | Tolerance of package center offset defined by datum S , A and B |
| Seating plane | S | The surface determined when package is placed on a horizontal surface. |
| Datum surface A | A | Calculated by crossing 2 straight lines by the Least Squares Method from both lengthwise and then widthwise terminal center positions, then making the X axis (lengthwise) surface datum A |
| Datum surface B | B | Calculate by crossing 2 straight lines by the Least Squares Method from both the widthwise and lengthwise terminal center positions, then making the Y axis (widthwise) surface datum. B |
| Mounting height | A | Height from the seating plane to the highest point of the package( including package warp ) |
| Stand-off height | A1 | Distance from the seating plane to the base plane |
| Package height | A2 | Height from base plane to top edge of Package body |
| Terminal pitch | e | Terminal pitch. This represents theoretical reference dimension. |
| Tolerance of package lateral profile | v | Positional tolerance of the package outlines |
| Terminal diameter | Φb | Diameter of each terminal |
| Tolerance of terminal center | Positional tolerance for center axis of the terminal defined by the datum S (seating plane) , A and B . Using the maximum material principle, show the tolerance for maximum terminal diameter. When terminal diameter is narrow, allowable tolerance is increased by the difference with the maximum diameter. | |
| Terminal coplanarity | y | Uniformity of the bottom-most surface of the terminal relative to the datum S (seating plane). |
| Parallelism of package top surface | y1 | Parallelism of package top surface relative to the datum S (seating plane). |
| Lengthwise overhang | SD | Position of the closest terminal with respect to datum line A |
| Widthwise overhang | SE | Position of the closest terminal with respect to datum line B |
| Overhang in body direction D | ZD or ZD | Distance from the true position of the outer-most terminal to the package edge |
| Overhang in body direction E | ZE or ZE | Distance from the true position of the outer-most terminal to the package edge |
Support
Support Communities
Get quick technical support online from Renesas Engineering Community technical staff.
Knowledge Base
Browse our knowledge base for helpful articles, FAQs, and other useful resources.